Xanthi Residence is a contemporary residential development comprising eight 2-bedroom apartments that are designed around balance and functional living spaces.
The building combines strong architectural expression with efficient planning, resulting in an elegant residential environment suited to modern urban life.
Organised as a boutique apartment building with a limited number of residences per level, Xanthi Residence prioritises privacy, generous outdoor living, and clear separation between public and private zones.
Completion | Q4 2027
Inspiration
The project draws inspiration from modern Mediterranean architecture, where structure, proportion, and climate responsiveness shape the design. Rather than relying on decorative elements, Xanthi Residence expresses its character through bold horizontal slabs, disciplined geometry, and minimalism. Light, shade, and outdoor space are treated as integral architectural elements, shaping both the façade and the daily experience of living within the building.
Architecture
Xanthi Residence is articulated through pronounced horizontal concrete floor plates that extend outward to form deep balconies on all residential levels. These cantilevered slabs give the building a strong visual identity while providing effective solar shading and enhancing outdoor usability. A clear vertical core houses the main circulation, ensuring efficient access to each residence while maintaining privacy. The façades are composed through a deliberate contrast between solid concrete elements, transparent glazing, and warm timber accents that introduce texture and balance. Glass balustrades preserve visual continuity and lightness, allowing the architecture to remain open and refined despite its strong structural presence.
Living
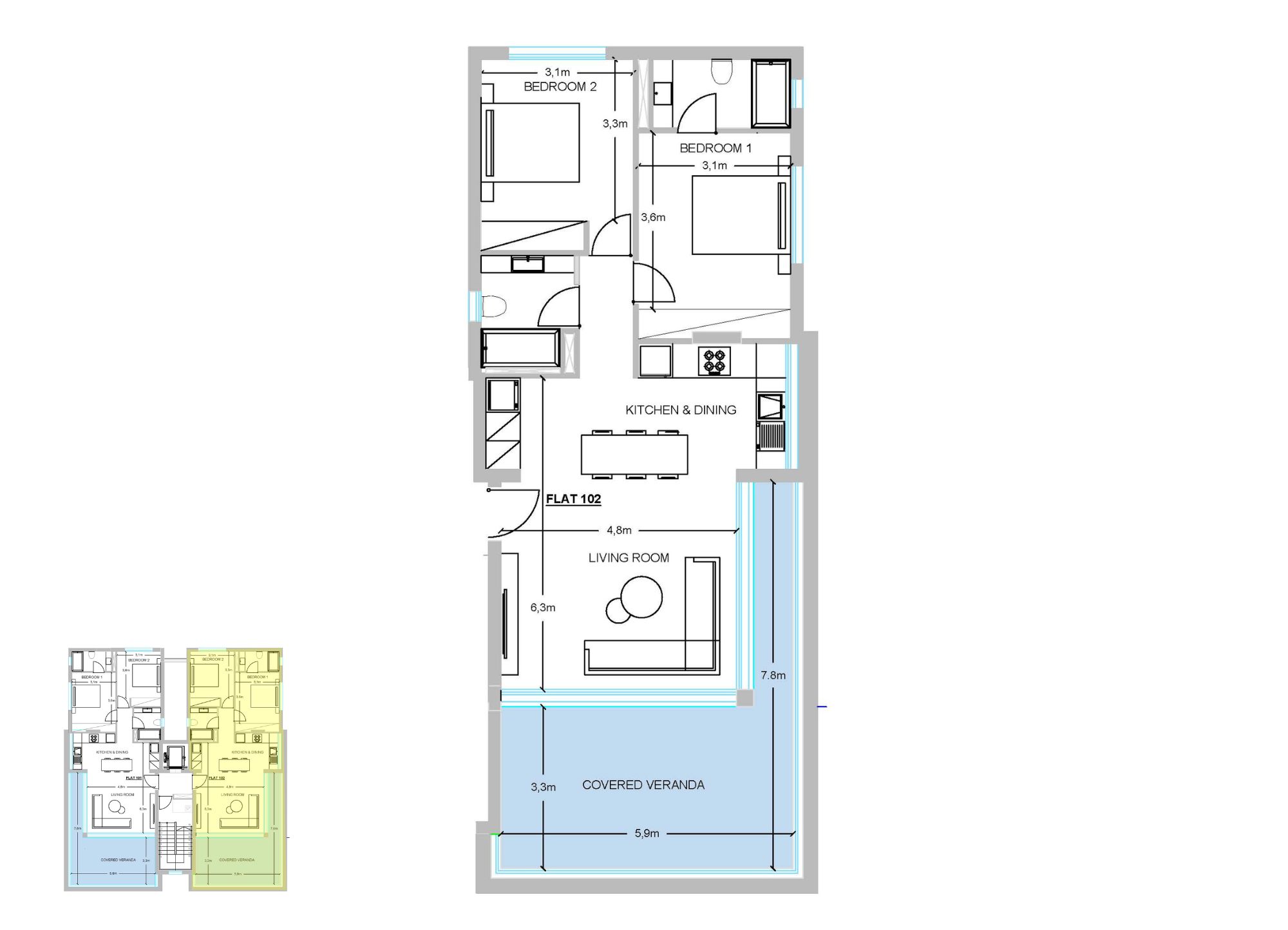
The internal organisation of Xanthi Residence is defined by well-proportioned, functional layouts with a clear distinction between living and sleeping zones. Each typical floor accommodates two 2-bedroom apartments, arranged symmetrically around a central vertical circulation core, ensuring privacy and efficient movement. Open-plan living, dining, and kitchen areas are positioned along the façade, directly connected to large covered balconies that function as natural extensions of the interior spaces. Bedrooms are set deeper within the plan, offering a more private and quiet environment, while bathrooms and service spaces are compactly arranged for efficiency. Generous balcony depths enhance outdoor living and improve natural shading and thermal comfort. At roof level, private roof terraces and auxiliary spaces further enrich the residential offering, providing elevated outdoor areas with increased privacy and openness.
Specifications
Availability
| Bedrooms | 2 |
| Internal Area (m2) | 83 |
| Covered Veranda (m2) | 22 |
| Communal Areas (m2) | 10 |
| Total Covered Area (m2) | 115 |
| Floor(s) | 1st floor |
| Parking Spaces | 1 |
| Bedrooms | 2 |
| Internal Area (m2) | 83 |
| Covered Veranda (m2) | 22 |
| Communal Areas (m2) | 10 |
| Total Covered Area (m2) | 115 |
| Floor(s) | 1st floor |
| Parking Spaces | 1 |
| Bedrooms | 2 |
| Internal Area (m2) | 83 |
| Covered Veranda (m2) | 22 |
| Communal Areas (m2) | 10 |
| Total Covered Area (m2) | 115 |
| Floor(s) | 2nd floor |
| Parking Spaces | 1 |
| Bedrooms | 2 |
| Internal Area (m2) | 83 |
| Covered Veranda (m2) | 22 |
| Communal Areas (m2) | 10 |
| Total Covered Area (m2) | 115 |
| Floor(s) | 2nd floor |
| Parking Spaces | 1 |
| Bedrooms | 2 |
| Internal Area (m2) | 83 |
| Covered Veranda (m2) | 22 |
| Communal Areas (m2) | 10 |
| Total Covered Area (m2) | 115 |
| Floor(s) | 3rd floor |
| Parking Spaces | 1 |
| Bedrooms | 2 |
| Internal Area (m2) | 83 |
| Covered Veranda (m2) | 22 |
| Communal Areas (m2) | 10 |
| Total Covered Area (m2) | 115 |
| Floor(s) | 3rd floor |
| Parking Spaces | 1 |
| Bedrooms | 2 |
| Internal Area (m2) | 83 |
| Covered Veranda (m2) | 22 |
| Communal Areas (m2) | 10 |
| Total Covered Area (m2) | 115 |
| Roof Garden Area (m2) | 60 |
| Floor(s) | 4th floor |
| Parking Spaces | 1 |
| Bedrooms | 2 |
| Internal Area (m2) | 83 |
| Covered Veranda (m2) | 22 |
| Communal Areas (m2) | 10 |
| Total Covered Area (m2) | 115 |
| Roof Garden Area (m2) | 60 |
| Floor(s) | 4th floor |
| Parking Spaces | 1 |
Location
Xanthi Residence enjoys a strategic address in the greater Strovolos area of Nicosia, offering immediate access to everyday amenities and key city infrastructure. Just minutes away lies Acropolis Park, providing green open space for walking, exercise and family leisure. The development is also conveniently positioned near the main Nicosia–Limassol highway, ensuring fast connectivity across the island. Within close reach are the popular cafés and lifestyle spots of the Athalassa area, creating a dynamic urban environment where work, recreation and convenience come together seamlessly.
Get in Touch...
We would love to hear from you!
Please let us know how we can be of assistance, and we'll get back to you as quickly as possible.
Our Values
Customer Service
Committed to providing the best possible customer experience.
Our service to you begins when you first walk through the door, but doesn't end once we hand over the keys.